Γ Εξαγορά
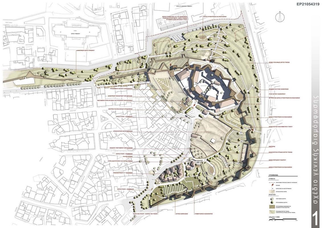
Αρχιτεκτονική μελέτη: Μ5architects - Μ. Γκουτζιαμάνης + Φ. Παπαπέτρου -,
Α. Κουλουκούρης, Χ. Κουλουκούρης , Α. Βασιλειάδης , Π. Πρόδρομος, Α. Βακούρα
Η/Μ μελέτη: Γ. Καμπίτσης
Φυτοτεχνική μελέτη: Μ5architects -Μ. Γκουτζιαμάνης + Φ. Παπαπέτρου-,
Ι. Τσαλικίδης, Δ. Μεταξάς, Α. Μαυρίδου, Α. Τσαλικίδης
Διοργανωτής: Υπουργείο Περιβάλλοντος , Ενέργειας & Κλιματικής Αλλαγής
Tοποθεσία: Θεσσαλονίκη , Ελλάδα
Περιοχή: 49500m²
Σχεδιασμός: 2012